Utbyggingsavtalen fastslår hvem som har ansvar for å gjennomføre og finansiere offentlig infrastruktur.

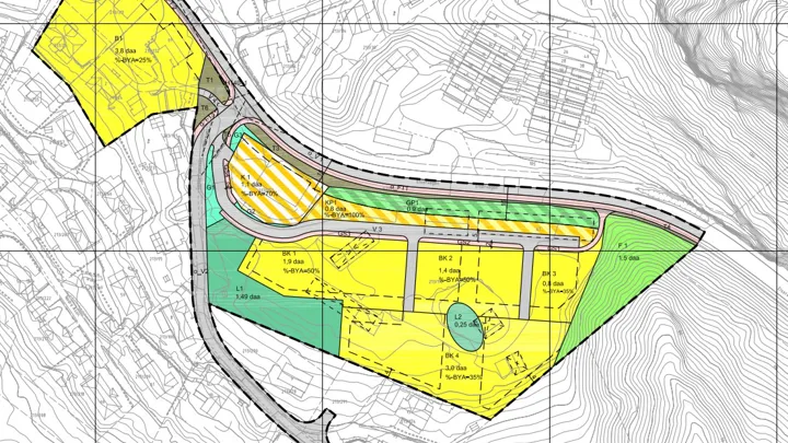
Skien kommune starter opp forhandlinger med «Åfoss utvikling AS» om utbyggingsavtale for detaljregulering for gbn.bnr 213/110 (m.fl) på Åfoss, planID 4003 2012010.
Se mer informasjon om reguleringsplanen
Se mer informasjon om utbyggingsavtaler i Skien kommune.
Fremforhandlet avtale vil bli lagt ut til offentlig ettersyn før den fremmes for behandling i bystyret.
Denne kunngjøringen er i henhold til plan- og bygningsloven av 27. juni 2008 nr. 71 § 17-4 første ledd.
Innspill
Innspill til forhandlingene kan rettes skriftlig til
- e-post: post@skien.kommune.no, eller
Postadresse: Skien kommune, Postboks 158, 3701 Skien
Merk henvendelsen med saksnummer 25/9962.
Kontakt
-
Knut M. Amlie, utbyggingsansvarlig
- Telefon: 91 33 34 83
- Epost: Send e-post